Capannoni / Depositi in vendita viale Como 6, Giussano, località Paina

Lombardia Monza e Brianza Giussano Paina Rif. GF-Viale Como
    Viale Como 6
+

CAPANNONE INDUSTRIALE

Prezzo
€ 389.000
Contratto
Vendita
Tipologia
Capannoni / Depositi
Tipo di Proprietà
Intera proprietà
Destinazione
Commerciale
Regione
Lombardia
Provincia
Monza e Brianza
Comune
Giussano
Località
Paina
Superficie
360 m²
Locali
1
Bagno per Disabili
No

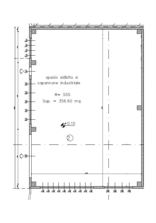
Giussano, comodo e ben servito con la SS36 Nuova Valassina, proponiamo NUOVO capannone in pronta consegna situato al piano terra di un contesto artigianale/industriale. La metratura (360 mq), l' altezza (5,55 m sotto trave) e la disposizione interna senza pilastri interni, permettono di ottenere uno spazio ampio e facilmente sfruttabile per la propria attività. Serramenti in alluminio a taglio termico, ampio spazio di manovra esterno con parcheggi, predisposizione per carroponte, pronta consegna!

Contattaci al 351.6353375 per ulteriori info o per un appuntamento!! Se preferisci (o se non ricevi risposta) inviaci un sms con i tuoi dati e sarà nostra premura ricontattarti appena possibile! Tutte le informazioni qui fornite sono da ritenersi puramente indicative e non costituiscono in alcun modo elemento contrattuale . I dati relativi alle superfici sono approssimative , non hanno valore contrattuale e non sono in alcun modo vincolanti nella trattativa di vendita e di locazione. I beni vengono venduti o affittati a corpo e non a misura.

Classe Energetica: N.D.

Caratteristiche

Condizioni: Nuova Costruzione
Riscaldamento: Inesistente
Alimentazione Riscaldamento: Gas
Condizionatore: Assente
Passo Carrabile: Si
 
Immobile Libero: Si
Piano: Piano Terra - piani edificio 1
Immobile a Reddito: No
Accesso per Disabili: Si
Reception: No
Anno di Costruzione: 2026
 
Tipo Costruzione: Media
Stato Costruzione: Nuovo
Altezza: 6,25 mt.
Altezza Sottotrave: 5,55 mt.
Reception: No
 
Proprietà Recintata: No
Mensa: No
Spogliatoio: No
Docce: No
Allarme: No
Videosorveglianza: No
 
Doppi vetri
Serramenti in alluminio

Planimetrie

CAPANNONE INDUSTRIALE - 1
CAPANNONE INDUSTRIALE - 2
CAPANNONE INDUSTRIALE - 3
CAPANNONE INDUSTRIALE - 4

Mappa

Benvenuto! Clicca su uno dei nostri assistenti per inviare un messaggio, vi risponderanno il prima possibile.

Chat via WhatsApp